Casa

Descrição

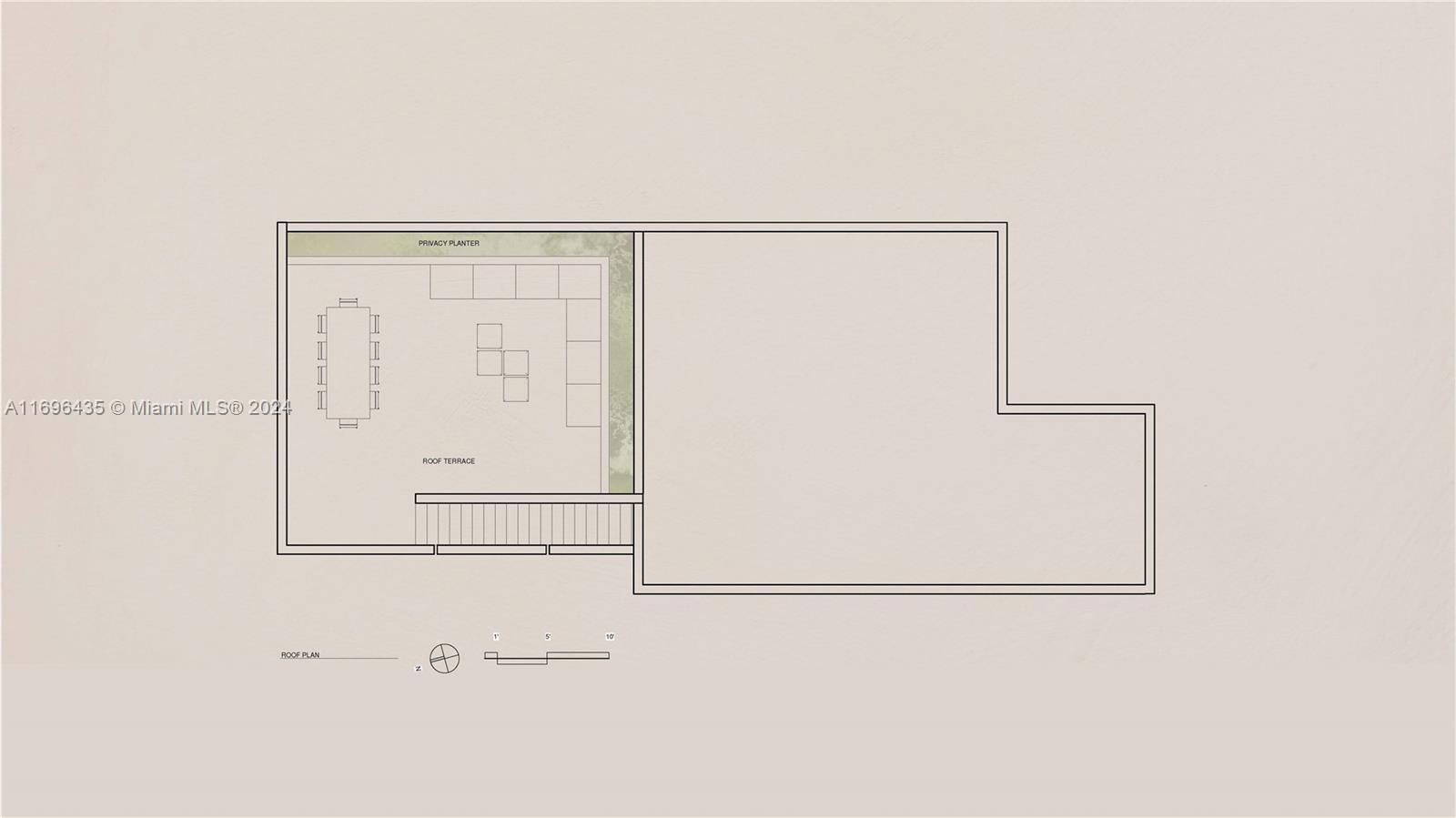
Super modern new construction home on PRIME CORNER LOT! Location, location, location! Excellent location east of US1 in Shorecrest, corner lot in a prime neighborhood that's booming with new construction, restaurants, shopping and easy access to the white sandy beaches of Miami Beach. Lot is one block from the water, boat dock less than a mile away with quick access to 95. Cash or financing. City Approved plans and approved permits included. This stunning approximately 4000 sf modern home in Miami embodies sophistication and functionality. It has 4 bedrooms, 4 full bathrooms and 2 half bathrooms (powder room and cabana bath). Featuring an open-concept design,the residence boasts expansive floor-to-ceiling glass windows that blend indoor and outdoor living, filling space with natural light

Detalhes

  • $ 749.000,00
  • $ 14.320,00
  • 5500.00 ㎡
  • 5500.00 ㎡
  • Residencial

Características

Localização

Outros Imóveis Relacionados

Residential / Home Casa
  • Para Venda

Weston

  • 4 Quartos
  • 2 Banheiros
  • 2 Vagas
  • 1,978
$ 718.000,00
Residential / Condo Casa de Condomínio
  • Para Venda

Pembroke Pines

  • 3 Quartos
  • 2 Banheiros
  • 1,361
$ 460.000,00
Residential / Condo Casa de Condomínio
  • Para Venda

Davie

  • 3 Quartos
  • 2 Banheiros
  • 1 Vaga
  • 1,648
$ 535.000,00
Residential / Condo Casa de Condomínio
  • Para Venda

Aventura

  • 3 Quartos
  • 2 Banheiros
  • 1 Vaga
  • 2,360
$ 1.590.000,00

Quer anunciar seu imóvel conosco?

Nós podemos ajudá-lo a negociar seu imóvel com agilidade e segurança.