Duplex / Quad Plex / Triplex

Descrição

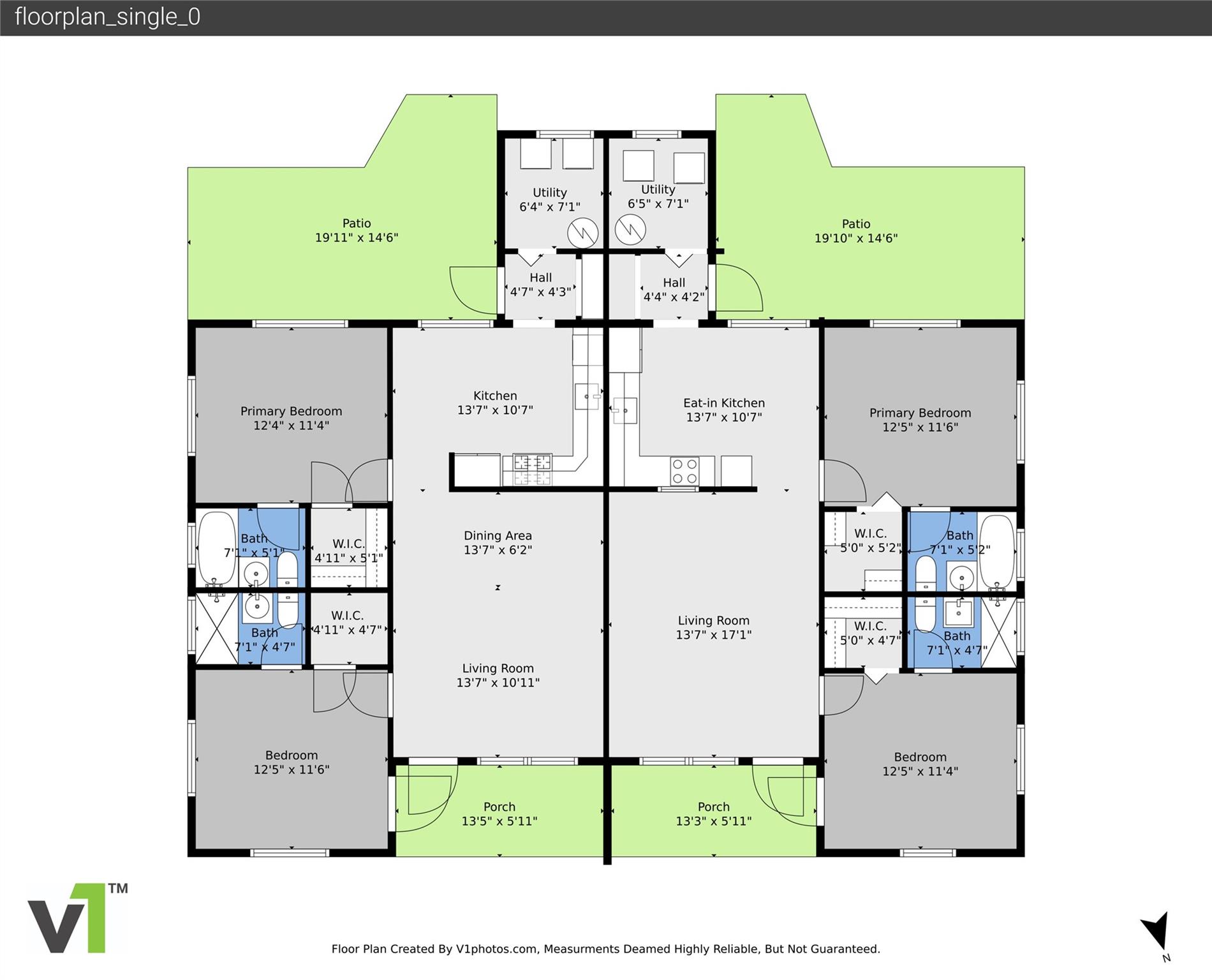
Fort Lauderdale DUPLEX in a prime location! Impact windows and doors throughout with a large side yard. New landscaping, resealed driveway, ample parking. EAST UNIT: vacant, new paint and flooring, updated kitchen with granite and stainless appliances, updated bathrooms, newer water heater, HVAC 2016, private backyard and private washer/dryer in utility room. WEST UNIT: rented for $2400/month. Updated kitchen with granite counters and stainless steel appliances, updated bathrooms, HVAC 2020, newer water heater, private backyard, private washer/dryer in utility room.

Detalhes

  • $ 865.000,00
  • $ 10.262,00
  • 1960.00 ㎡
  • 1960.00 ㎡
  • 1959

Características

Localização

Outros Imóveis Relacionados

Residential / Home Casa
  • Para Venda

Weston

  • 4 Quartos
  • 2 Banheiros
  • 2 Vagas
  • 1,978
$ 718.000,00
Residential / Condo Casa de Condomínio
  • Para Venda

Pembroke Pines

  • 3 Quartos
  • 2 Banheiros
  • 1,361
$ 460.000,00
Residential / Condo Casa de Condomínio
  • Para Venda

Davie

  • 3 Quartos
  • 2 Banheiros
  • 1 Vaga
  • 1,648
$ 535.000,00
Residential / Condo Casa de Condomínio
  • Para Venda

Aventura

  • 3 Quartos
  • 2 Banheiros
  • 1 Vaga
  • 2,360
$ 1.590.000,00

Quer anunciar seu imóvel conosco?

Nós podemos ajudá-lo a negociar seu imóvel com agilidade e segurança.